Back to Projects

Dutch Steps

Housing Block

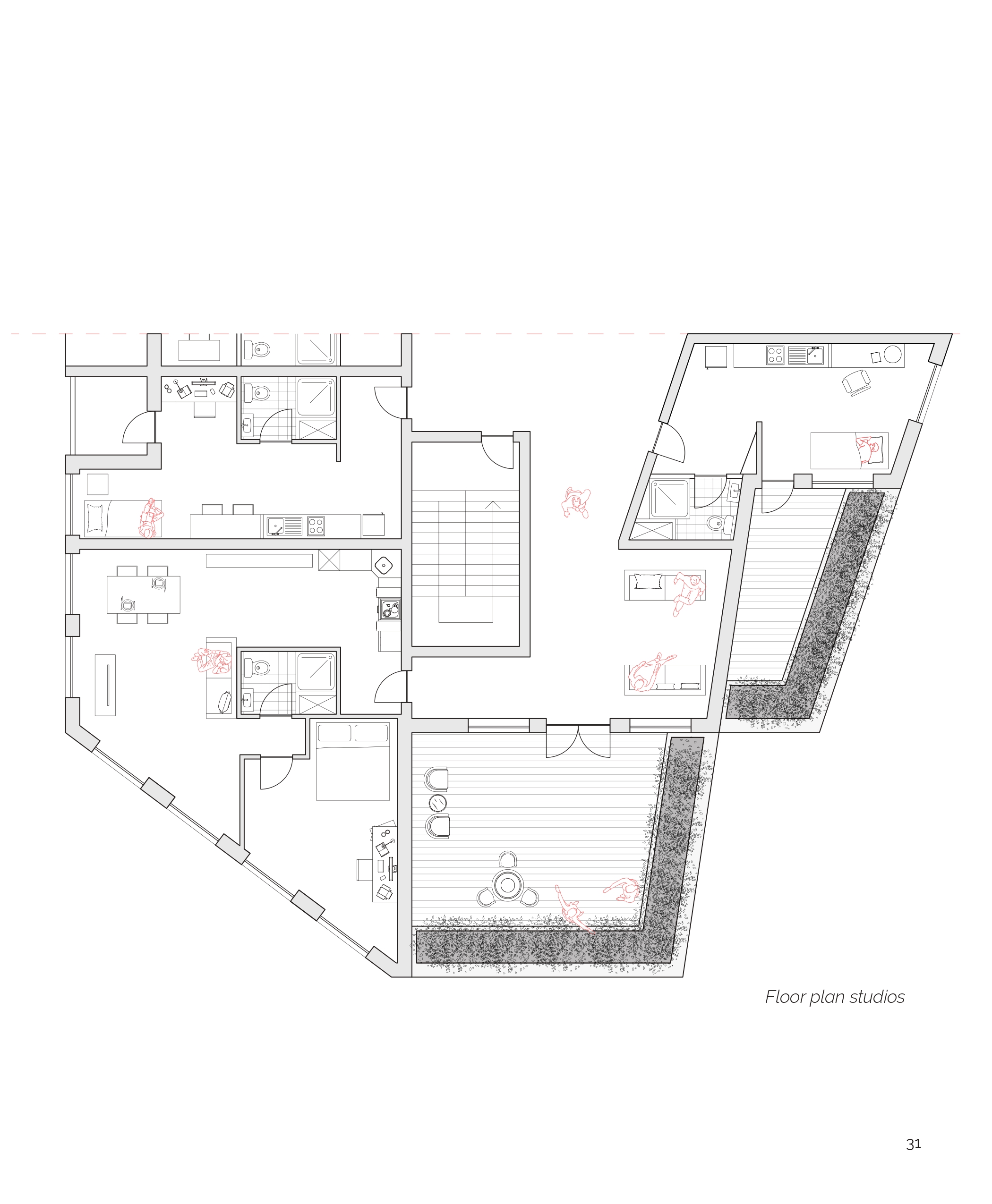
Dutch Steps - Housing block

Project Info

  • Type: Housing Block
  • Location: Delft, Netherlands
  • Total Dwellings: 96
  • Dwelling Types: 6

Themes

  • Shared Living
  • Housing
  • Student Housing

Dutch Steps is a housing block that aims to create a multi-generational, living-working environment. It incorporates student, starter, and family housing in a complex space that balances recreation, working, and consumer functions.

The goal is to allow these different parties to not only live together, but improve the quality of life of the community as a whole.

Dwelling Types

  • Studios: 57
  • Student Apartments: 9
  • Small Apartments: 3
  • Medium Apartments: 17
  • Large Apartments: 5
  • Row Houses: 5

Amenities

  • Exercise Room
  • Cinema
  • Study Library
  • Cafes (x2)
  • Workshops (x4)
  • Bike Storage
  • Community Gardens

Sustainability Measures

Dismountable and reusable concrete structure. Prefabricated construction elements are efficiently demountable and reusable. Durable concrete composition in structural elements. Operable return system for roofing, elevator, and lighting. Material savings by making balconies inward.